Kullanım Suyu Deposu
-9392 m2 alana sahip İstanbul Yeni Havalimanının kullanım suyu ihtiyacını karşıyalacak yapıda döşemeler, yaklaşık 8.5 m uzuluğunda 55+ 5 boyutunda 5 ayrı tip ile TT öngermeli plak olarak hesaplanmış.
Hesaplar danışman onaylı excel ile AASHTO yönetmeliğine uygun şekilde yapılmıştır.
Çizimler ayrıntılı olarak üreticiye sunulmaktadır.
PREKAST PROJELER
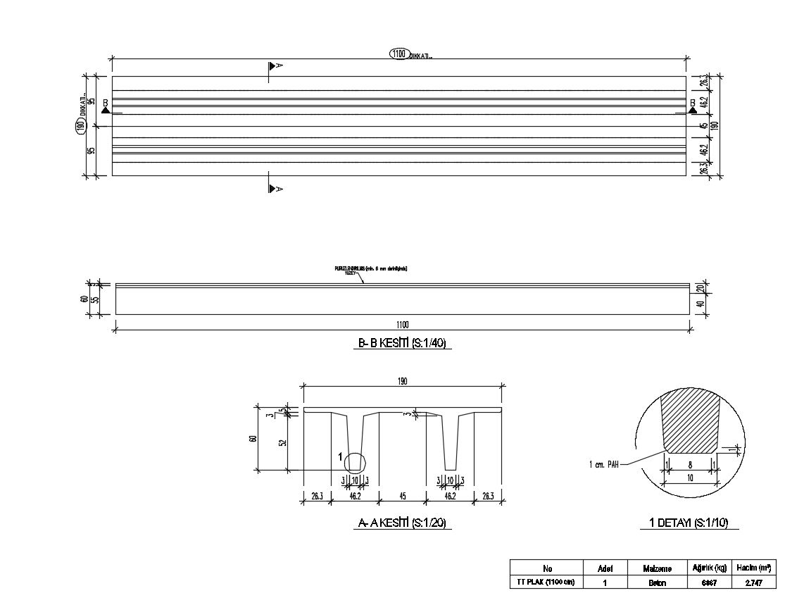
V Tipi Kanal Kapama
-Yağmur sularının tahliyesi için yapılan 11 m genişliğie sahip V tipi kanalların üstünün kapanması için yaklaşık 1000 adet TT öngermeli plak hesaplanmıştır.
Hesaplar danışman onaylı excel ile AASHTO yönetmeliğine uygun şekilde yapılmıştır.
Çizimler ayrıntılı olarak üreticiye sunulmaktadır.
Bahçe Sulama Deposu
-1800 m2 alana sahip İstanbul Yeni Havalimanının yağmur s,uyunu depolamak için yapılan yapıda döşemeler, yaklaşık 8~7 m uzuluğunda 55+5 boyutunda 2 ayrı tip ile TT öngermeli plak olarak hesaplanmış.
Hesaplar danışman onaylı excel ile AASHTO yönetmeliğine uygun şekilde yapılmıştır.
Çizimler ayrıntılı olarak üreticiye sunulmaktadır.








